
Lindholm Skov
Vi støtter en bæredygtig fremtid ved at skabe Lindholm skov. Et fint partnerskab med Plant Et Træ, Lindholm Biler og Viborg Kommune.
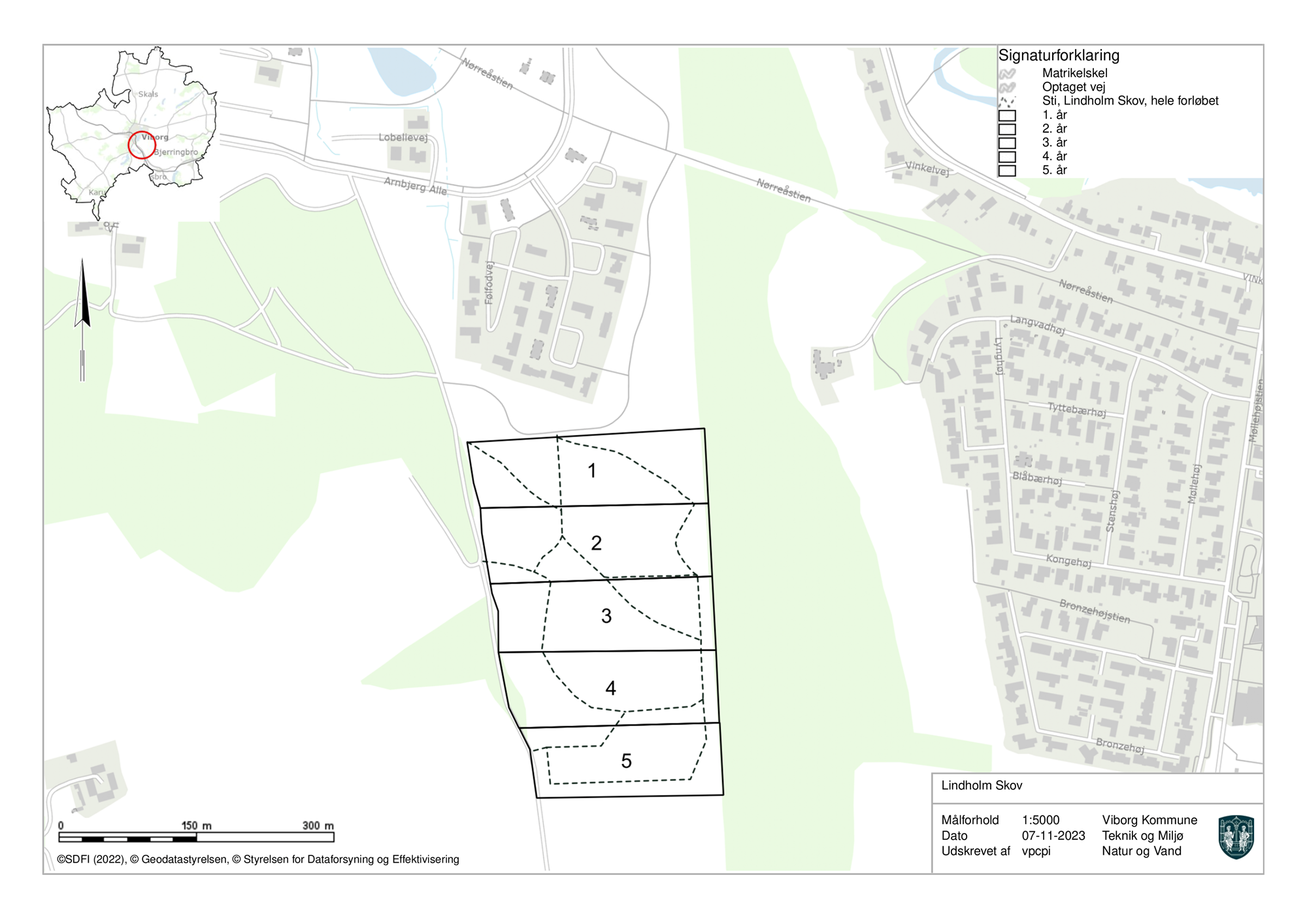
10 hektar bliver til skov
I 2020 blev det første spadestik taget på de 10 hektar kommunal jord, der skal forvandles fra landbrug til skov.
Vi tilplanter 2 ha. om året i en periode på 5 år.
Skoleelever hjælper
I 2020, 2022 og 2023 hjalp elever fra Møllehøjskolen med at plante træer.
Mangfoldig og fremtidssikret
Der bliver plantet hjemmehørende træer og buske, der er tilpasset jordforholdene på arealet, så det bliver en stabil og fremtidssikret skov med mange insekter, fugle og dyr tilknyttet.
Stier i skoven
Kommunen laver stier på arealet, så du nemt kan komme ud og opleve skovens udvikling. På sigt kan der måske komme flere faciliteter til friluftsliv, men først og fremmest skal der være træer i skoven.
Klimaneutral i 2050
Målet er at kommunen er klimaneutral i 2050. Skovrejsningen hjælper ved at binde CO2 i mange år frem.
• Inden 2030 vil vi gerne etablere 950 hektar mere skov
• Fra 2030-50 yderligere 2.350 hektar.
Kort over området
