Planlægning - Taphede
Byrådet har besluttet, at den langsigtede byudvikling omkring Viborg by skal ske i Taphede, øst for Viborg by. Området er ca. 180 ha og ligger mellem Randersvej og Tapdrup.

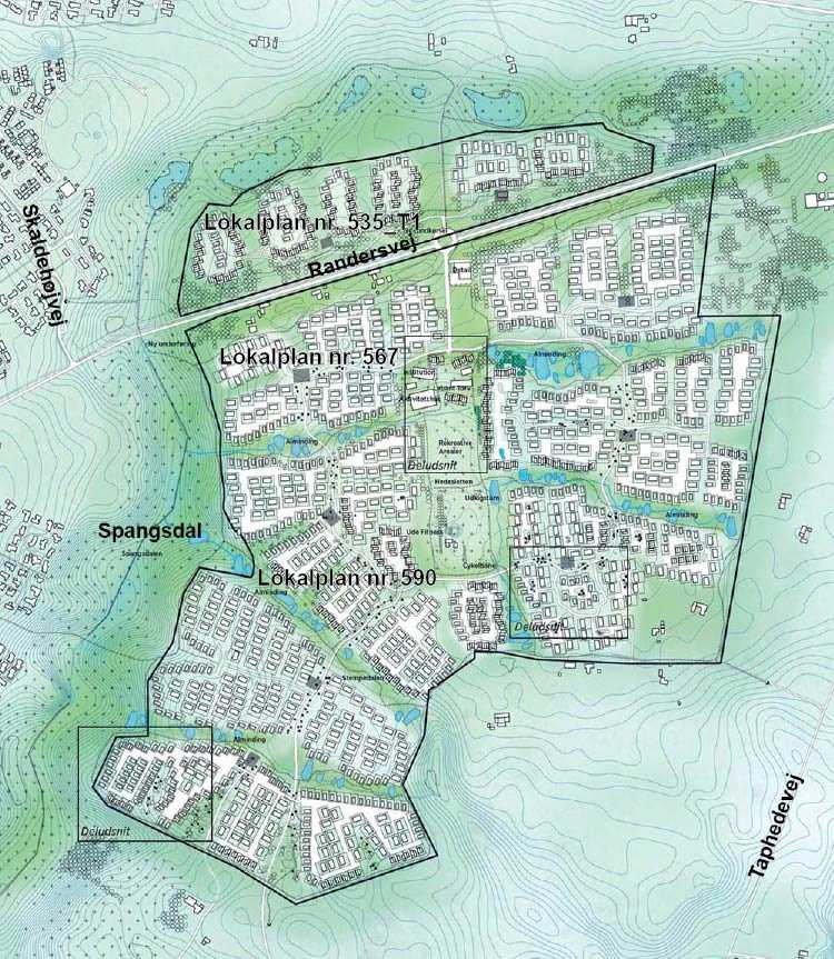
Byrådet vedtog i marts 2018 en helhedsplan for Taphede. Området skal udbygges i etaper efter helhedsplanens principper.
Den vestlige og nordøstlige del af Taphede er udlagt som boligområde til ca. 1.200 boliger i den gældende Kommuneplan 2025-2036.
De første lokalplaner i Taphede er vedtaget, og udbygningen af den nye bydel er i gang.
Der vil blive udarbejdet flere lokalplaner i takt med, at den vestlige del af Taphede skal udbygges fra nord mod syd.
Planer i området
Helhedsplan for Taphede - Vedtaget marts 2018 (pdf)Kommuneplantillæg nr. 37 - Vedtaget maj 2020 (pdf)Lokalplan nr. 535 inkl. tillæg nr. 1 for et boligområde nord for Randersvej - Vedtaget juni 2020 og september 2021 (pdf)Lokalplan nr. 567 for et område til boliger og almen service syd for Randersvej - Vedtaget marts 2022 (pdf)Lokalplan nr. 590 for et område til boliger ved Spangsdalen
